Ренато №556

Цена строительства от 4 233 000 ₽* * Стоимость не является окончательной
Заявка на консультацию
  • Общая площадь 141 м2
  • Длина 8.2 м
  • Ширина 8.3 м
  • Материал стен Каркасно-панельные
  • Количество этажей 2
  • Подвал Нет
  • Мансарда без мансарды
  • Гараж Нет
  • Терраса Нет
  • Проживание Круглогодичное
  • Количество комнат 4
  • Количество спален 3
  • Количество санузлов 2
  • Вид проекта дом
  • Застройщик Строй-СИП
  • Архитектурный стиль Скандинавский
  • Отделка фасада Комбинированная
  • Крыша Двускатная
  • Можно купить домокомплект Нет
  • Модульный тип строения Нет
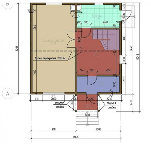
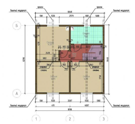
Планировки
Описание проекта

"Ренато" - это уютный дом в скандинавском стиле, рассчитанный на семью из 3-5 человек.

Благодаря энерго-эффективной технологии СИП-панелей, дом подходит как для сезонного, так и для постоянного проживания.

Фасад и внешний облик:

  • Дом выполнен в светлых тонах с акцентами из натурального дерева.
  • Фундамент — деревянный ростверк на винтовых сваях.
  • Несущие стены — SIP панель (174мм).
  • Покрытие — металлочерепица.
  • Наружная отделка — облицовочная плитка.
  • Фасад — имитация бруса.

Комплектация:

"Теплый контур"

  • от 4.2 млн. рублей
  • Коробка с СИП-панелями,окнами,крышей

"Под чистовую"

  • от 5.6 млн. рублей
  • Внутренние перегородки,проводка,отопление

"Под ключ"

  • от 7.7 млн. рублей
  • Все готово к проживанию

Вас может заинтересовать
Вас может заинтересовать

Выбор местоположения

Задать вопрос / написать нам

E-mail: domgis@mail.ru

Мы свяжемся с Вами в течение дня.

Тех. поддержка
Предмет обращения:
Тукущая страница

Мы свяжемся с Вами в течение дня.

Уведомление
Предмет обращения:
Тукущая страница
Обратный звонок
Обратный звонок
Выберите ваш город
Пожаловаться

Объявление опубликовано.
Изменения сохранены

Период публикации - бессрочный, при условии подтверждения актуальности каждые 50 дней. Уведомления будут отправляться на Вашу электронную почту.

Выберите причину снятия с публикации

Снятые с публикации объявления не участвуют в поиске и недоступны для подробного просмотра.

Для повторной публикации нажмите «Вернуть в публикацию»