Барнхаус 115 №925

Цена строительства от 4 900 000 ₽* * Стоимость не является окончательной
Заявка на консультацию
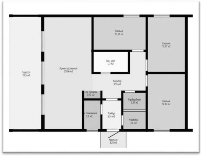
  • Общая площадь 115 м2
  • Материал стен Каркасно-панельные
  • Количество этажей 1
  • Подвал Нет
  • Мансарда без мансарды
  • Гараж Нет
  • Терраса Да
  • Проживание Круглогодичное
  • Количество комнат 4
  • Количество спален 3
  • Количество санузлов 1
  • Вид проекта дом
  • Застройщик МоноЛит
  • Архитектурный стиль Барнхаус
  • Отделка фасада Комбинированная
  • Крыша Двускатная
  • Можно купить домокомплект Да
  • Модульный тип строения Нет
Планировки
Описание проекта

Барнхаус 115 м² — это современный одноэтажный дом в стиле барн, который гармонично сочетает в себе функциональность и эстетику.

Этот дом станет отличным выбором для тех, кто ценит комфорт, практичность и современный дизайн. Он идеально подходит как для постоянного проживания, так и для загородного отдыха, сочетая в себе все необходимые удобства для комфортной жизни.

Комплектации:

ДОМОКОМПЛЕКТ 1 706 500 р.

СТАНДАРТ 4 900 000 р.

КОМФОРТ 6 900 000 р.

КОМФОРТ+ 8 000 000 р.

Вас может заинтересовать
Вас может заинтересовать

Выбор местоположения

Задать вопрос / написать нам

E-mail: domgis@mail.ru

Мы свяжемся с Вами в течение дня.

Тех. поддержка
Предмет обращения:
Тукущая страница

Мы свяжемся с Вами в течение дня.

Уведомление
Предмет обращения:
Тукущая страница
Обратный звонок
Обратный звонок
Выберите ваш город
Пожаловаться

Объявление опубликовано.
Изменения сохранены

Период публикации - бессрочный, при условии подтверждения актуальности каждые 50 дней. Уведомления будут отправляться на Вашу электронную почту.

Выберите причину снятия с публикации

Снятые с публикации объявления не участвуют в поиске и недоступны для подробного просмотра.

Для повторной публикации нажмите «Вернуть в публикацию»