Барнхаус 74 №921

Цена строительства от 3 500 000 ₽* * Стоимость не является окончательной
Заявка на консультацию
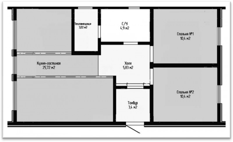
  • Общая площадь 64 м2
  • Материал стен Каркасно-панельные
  • Количество этажей 1
  • Подвал Нет
  • Мансарда без мансарды
  • Гараж Нет
  • Терраса Нет
  • Проживание Круглогодичное
  • Количество комнат 3
  • Количество спален 2
  • Количество санузлов 1
  • Вид проекта дом
  • Застройщик МоноЛит
  • Архитектурный стиль Барнхаус
  • Отделка фасада Комбинированная
  • Крыша Двускатная
  • Можно купить домокомплект Да
  • Модульный тип строения Нет
Планировки
Описание проекта

Барнхаус 74 м² – это гармоничное сочетание простора и функциональности.

Этот уютный одноэтажный дом создан для комфортной жизни и отдыха. Продуманная планировка позволяет организовать несколько функциональных зон, сохраняя при этом атмосферу легкости и свободы.

Практичный и стильный, этот Барн станет вашим комфортным домом, где каждый квадратный метр используется максимально эффективно.

Комплектации:

ДОМОКОМПЛЕКТ 1 280 000 р.

СТАНДАРТ 3 500 000 р.

КОМФОРТ 5 000 000 р.

КОМФОРТ+ 6 300 000 р.

Вас может заинтересовать
Вас может заинтересовать

Выбор местоположения

Задать вопрос / написать нам

E-mail: domgis@mail.ru

Мы свяжемся с Вами в течение дня.

Тех. поддержка
Предмет обращения:
Тукущая страница

Мы свяжемся с Вами в течение дня.

Уведомление
Предмет обращения:
Тукущая страница
Обратный звонок
Обратный звонок
Выберите ваш город
Пожаловаться

Объявление опубликовано.
Изменения сохранены

Период публикации - бессрочный, при условии подтверждения актуальности каждые 50 дней. Уведомления будут отправляться на Вашу электронную почту.

Выберите причину снятия с публикации

Снятые с публикации объявления не участвуют в поиске и недоступны для подробного просмотра.

Для повторной публикации нажмите «Вернуть в публикацию»