двухэтажный дом 669 №813

Цена строительства от 7 100 000 ₽* * Стоимость не является окончательной
Заявка на консультацию
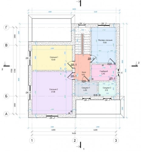
  • Общая площадь 150 м2
  • Длина 10.2 м
  • Ширина 10.5 м
  • Материал стен Газобетон/пеноблок
  • Количество этажей 2
  • Подвал Нет
  • Мансарда без мансарды
  • Гараж Нет
  • Терраса Да
  • Проживание Круглогодичное
  • Количество комнат 5
  • Количество спален 4
  • Количество санузлов 3
  • Вид проекта дом
  • Застройщик Новосибирская Домостроительная Компания
  • Архитектурный стиль Хай-тек
  • Отделка фасада Штукатурка
  • Крыша Плоская
  • Можно купить домокомплект Нет
  • Модульный тип строения Нет
Планировки
Описание проекта


Выбор местоположения

Задать вопрос / написать нам

E-mail: domgis@mail.ru

Мы свяжемся с Вами в течение дня.

Тех. поддержка
Предмет обращения:
Тукущая страница

Мы свяжемся с Вами в течение дня.

Уведомление
Предмет обращения:
Тукущая страница
Обратный звонок
Обратный звонок
Выберите ваш город
Пожаловаться

Объявление опубликовано.
Изменения сохранены

Период публикации - бессрочный, при условии подтверждения актуальности каждые 50 дней. Уведомления будут отправляться на Вашу электронную почту.

Выберите причину снятия с публикации

Снятые с публикации объявления не участвуют в поиске и недоступны для подробного просмотра.

Для повторной публикации нажмите «Вернуть в публикацию»