Проект 2 №320

Цена строительства от 2 850 000 ₽* * Стоимость не является окончательной
Заявка на консультацию
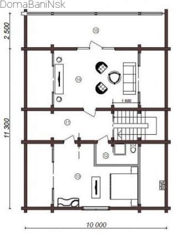
  • Общая площадь 170 м2
  • Длина 10 м
  • Ширина 11.3 м
  • Материал стен Профилированный брус
  • Количество этажей 1
  • Подвал Нет
  • Мансарда Имеется
  • Гараж Нет
  • Терраса Нет
  • Проживание Круглогодичное
  • Количество комнат 5
  • Количество спален 4
  • Количество санузлов 2
  • Вид проекта дом
  • Застройщик Дома и бани НСК
  • Архитектурный стиль Американский
  • Крыша Двускатная
  • Можно купить домокомплект Нет
  • Модульный тип строения Нет
Планировки
Описание проекта

Выбор местоположения

Задать вопрос / написать нам

E-mail: domgis@mail.ru

Мы свяжемся с Вами в течение дня.

Тех. поддержка
Предмет обращения:
Тукущая страница

Мы свяжемся с Вами в течение дня.

Уведомление
Предмет обращения:
Тукущая страница
Обратный звонок
Обратный звонок
Выберите ваш город
Пожаловаться

Объявление опубликовано.
Изменения сохранены

Период публикации - бессрочный, при условии подтверждения актуальности каждые 50 дней. Уведомления будут отправляться на Вашу электронную почту.

Выберите причину снятия с публикации

Снятые с публикации объявления не участвуют в поиске и недоступны для подробного просмотра.

Для повторной публикации нажмите «Вернуть в публикацию»