Идеальное сочетание классической эстетики, функциональности и современных технологий
Дом "Классик" — это уютное и практичное жильё, построенное по технологии СИП-панелей. Проект воплощает традиции классической архитектуры с акцентом на комфорт, энергоэффективность и долговечность. Благодаря использованию СИП-панелей дом отличается быстрыми сроками возведения, отличной теплоизоляцией и экологичностью.
Архитектура и экстерьер
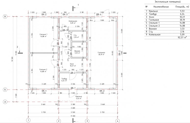
Планировка и интерьер
1. Просторная кухня-гостиная
Сердце дома — объединённое пространство кухни и гостиной. Идеально подходит для семейных обедов, приёма гостей и отдыха.
2. Две просторные комнаты
Спальни или кабинеты с большими окнами, рассчитанные на комфортное размещение мебели и личного пространства.
3. Техническое помещение
Отдельная зона для котельной, бойлера, систем хранения или мастерской.
4. Раздельный санузел
Удобство для семьи: просторная ванная комната и туалет расположены отдельно.
5. Гардеробная
Встроенное решение для хранения вещей, оптимизирующее пространство.
Преимущества технологии
Дом "Классик" — это выбор для тех, кто ценит традиционную эстетику, но не готов жертвовать современным комфортом. Просторные помещения, продуманная планировка и качественные материалы делают его идеальным для постоянного проживания или загородного отдыха. Проект подходит для семьи из 3-4 человек, а благодаря прочности конструкции и сайдинговому фасаду дом сохранит привлекательность на десятилетия.
Стоимость домокомплекта 2 570 000 рублей
Выбор местоположения
Мы свяжемся с Вами в течение дня.